Nos avis clients
Nos avis clients
0

Appartement T3 Saint Cyprien TOULOUSE

Toulouse (31300)
Réf : 1846

Appartement vendu loué.

Situé au 4ème étage d'une résidence des années 60. A proximité immédiate du marché de Saint CYPRIEN. 5 min des métros St Cyprien et Patte d'oie.

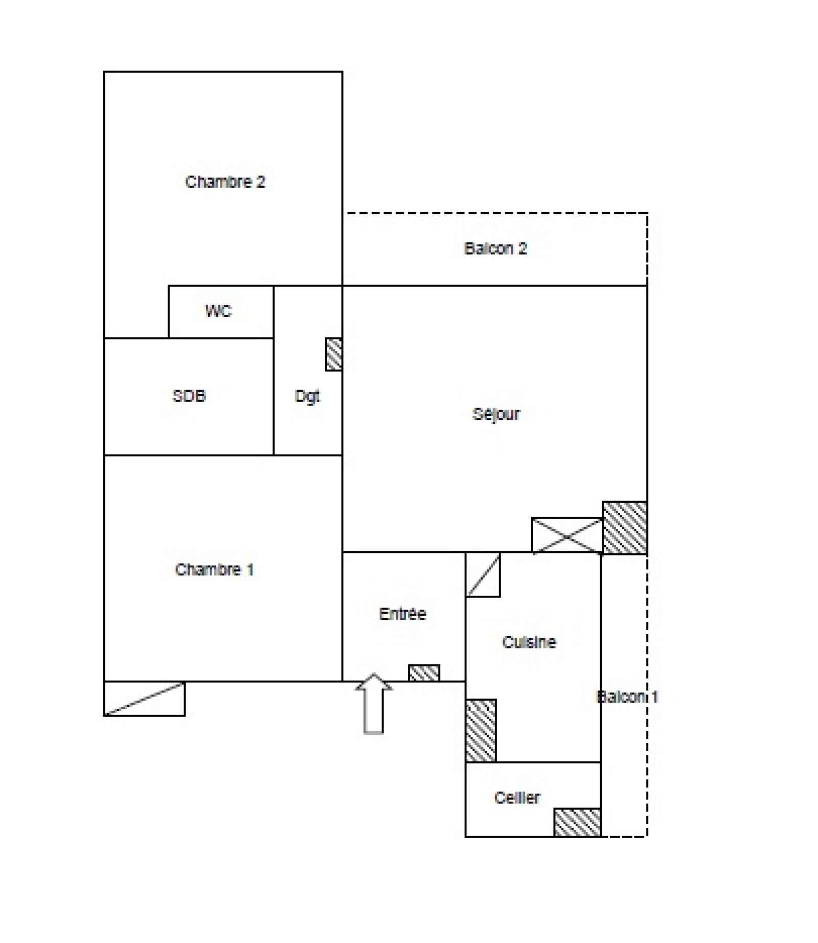
Cet appartement se développe sur 59 m² distribué dans sont état d'origine. Ouverture possible de certains murs afin de moderniser l'agencement.

2 balcons sont à dispositions, le principal de 4 m², un second filant de 2 m². Les ouvertures sur trois expositions permettent une lumière naturelle agréable.

Ascenseur en demi palier, gardien. Copropriété de 78 lots de T3 et T4 répartis sur 4 numéros de rue. La résidence est bien entretenue et occupée. Ravalement de façade en 2014. DPE Collectif : C.

A court mais surtout à moyen terme, des travaux d'ensemble seront à prévoir pour valoriser ce bien et retoruver les standards de prix de ce quartier vivant et recherché. (Electricité / salle de bain / cuisine / peintures).

Bail 3ans en cours. Terme en 08.2026

599 € HC + 76 €

Foncier : 1000 €

Romain CARLOT conseiller transaction ACI (syndic de cette copropriété) 06 82 01 44 36 / carlot.romain.31@gmail.com

Prix du bien 167 000 €
Pièce(s) 3
Chambre(s) 2

Caractéristiques du bien

Caractéristiques Valeurs
Code postal 31300
Surface habitable (m²) 59 m²
Surface loi Carrez (m²) 59 m²
Nombre de chambre(s) 2
Nombre de pièces 3
Etage 4
Ascenseur OUI
Nb de salle de bains 1
Cuisine Séparée
Mode de chauffage Gaz de ville
Type de chauffage TRAD_TYPE_CHAUFF_CHAUDIERE
Format de chauffage Individuel
Balcon OUI
Terrasse NON
Cave NON
Année de construction 1959

Infos financières

Caractéristiques Valeurs
Prix de vente honoraires TTC inclus 167 000 €
Prix de vente honoraires TTC exclus 155 000 €
Honoraires TTC à la charge acquéreur 7,74 %
Taxe foncière annuelle 1 000 €

Bilans énergétiques

DPE GES
Ce bien vous intéresse ?
Fieldset par défaut
Fieldset par défaut
Validation

* Champs obligatoires

Contacter l'agence
Validation
Les informations recueillies sur ce formulaire sont enregistrées dans un fichier informatisé par La Boite Immo agissant comme Sous-traitant du traitement pour la gestion de la clientèle/prospects de l'Agence / du Réseau qui reste Responsable du Traitement de vos Données personnelles.
La base légale du traitement repose sur l’intérêt légitime de l'Agence / du Réseau.
Elles sont conservées jusqu'à demande de suppression et sont destinées à l'Agence / au Réseau.
Conformément à la loi « informatique et libertés », vous pouvez exercer votre droit d'accès aux données vous concernant et les faire rectifier en contactant l'Agence / le Réseau.
Si vous estimez, après avoir contacté l'Agence / le Réseau, que vos droits « Informatique et Libertés » ne sont pas respectés, vous pouvez adresser une réclamation à la CNIL.
Nous vous informons de l’existence de la liste d'opposition au démarchage téléphonique « Bloctel », sur laquelle vous pouvez vous inscrire ici : https://www.bloctel.gouv.fr 
Dans le cadre de la protection des Données personnelles, nous vous invitons à ne pas inscrire de Données sensibles dans le champ de saisie libre
Ce site est protégé par reCAPTCHA, les Politiques de Confidentialité et les Conditions d'Utilisation de Google s'appliquent.